Designing for Sweden's Largest Visualization Dome
A new 360-degree theatre needed help to meet accessibility standards
Role
Designer
Client
Malmo Museum
Timeline
Jan 2023 - Jun 2023
Background
Malmo Museum is building a new 360 degree theatre that will immerse its audience to voyage out into space, back in time, and to other places otherwise inaccessible to humans.

Overview
Opportunity
Soon the doors to the Wisdome theatre at Malmo Museum will open, with hundreds of visitors expected daily.
The museum is expecting hundreds of visitors on opening day of the Wisdome and does not have a plan on how they will manage the flow of visitors in and out of the theatre.

Pre-show Experience
The foyer outside the theatre should build anticipation and ease visitors into the world they're about to enter.

Crowd Management
With 100+ visitors expected daily, a crowd flow is needed to prevent bottlenecks and keeps guests comfortable.

Accessibility and Comfort
The space should welcome visitors of all ages and abilities, ensuring every guests feels comfortable and are prepared for the theatre experience.
Goal
The goal of the project is to optimize visitor flow in and out of the Wisdome, while creating an engaging waiting experience. Through spatial planning and interactive displays, the foyer should create a journey that begins the moment the visitors arrive.
Solution
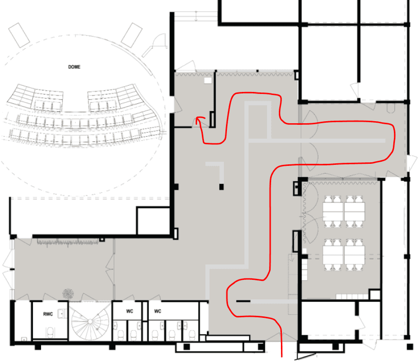
The final designed floorplan incorporated solutions to manage the flow of visitors when entering and exiting the Wisdome.

Glasses Counter
A counter will divide the entry and exit pathways, to manage visitor flow and distribute the 3D glasses.

Lounge Area
A designated lounge area gives visitors a place to sit, park their strollers, and rest before entering the theatre.

Visual Aids
Screens, projections, and arrows will turn the wait time into an engaging pre-show experience.
Problem Space
Research and Discovery
The team examined the floorplans and explored the construction site to get an idea of the space we were working with. We also met with the project manager to define the requirements and constraints for this project.

User Interviews
We conducted user interviews with museum visitors that represented a range of accessibility needs, mobility levels, and family situations. From these conversations, I developed personas that helped to inform our design decisions, ensuring we addressed real concerns rather than assumptions.

Brainstorming
A rapid brainstorming session was held to come up with solutions for the identified problems. The ideas were grouped into three categories: entering the foyer, pre-show experience, and exiting after the show. This framework helped us pinpoint solutions for each phase of the visitor journey.

Designing an Impactful Solution
We designed solutions for each phase of the visitor journey: entering the foyer, the pre-show experience, and exiting after the show.
Entering the Foyer
01
Stroller Parking and Locker Storage
Just outside the main entrance, a stroller parking and locker storage area will be placed along the wall. Visitors can store their jackets and belongs before entering, to prevent congestion and bottlenecking in the small foyer.

02
Ticket Control Counter
At the main entrance, a worker will be there to direct visitors into the foyer and scan tickets.

Pre-Show Experience
Since there were 2 doors to enter the foyer, we set one to be the entry and one to be the exit to avoid confusion and help establish the flow of visitors. The visitors should enter from the main entrance of the museum and exit to loop back into the rest of the exhibits.
Entry Flow

Exit Flow

01
3D Glasses Counter
An L-shaped counter will be added to the non-removeable pole in the middle of the foyer, which will create separate entry and exit pathways. Here, visitors can easily collect and return their 3D glasses.

Glasses Sanitation
One of the requirements was that the the height of the counter must be able to comfortably house the glasses sanitation machine (46 x 47.2 x 26.7 in).

Varying Counter Heights
There will be varying counter heights to accommodate children and wheelchair users to easily access their 3D glasses before entering the theatre.

02
Lounge Area
A lounge area will allow people with strollers to park their strollers outside of the theatre and sit if they need a rest. Ensuring the area of the lounge is wide enough for wheelchair and walker users means there is no potential user segregation by requiring certain users to use a different entrance/ exit door.

03
Path Indicators
Removeable panels and walls will guide visitors through the foyer, taking them on a curated journey before they enter the theatre. A story connected to the show will unfold, building anticipation as guests move through the space.

Also, projected arrows onto the floor will be used to indicate entry and exit to the Wisdome. The contrast of colours and lighting on the pathway will be easily detectible by low-vision users.

04
Visual Aids
Visual and auditory aids on screens will be placed around the waiting room area to be used as a countdown and to build anticipation before the main feature. These previews will help users feel more at ease and prepared before entering the immersive environment.

Exiting After the Show
01
One Main Exit Path
Once the show has finished, visitors will follow the path towards the bathroom and exit of the foyer. This door will loop around to the entrance of the foyer where visitors can recollect their strollers and items from the storage lockers. This direction leads back to the other exhibits of the museum.

VR Rendering
3D virtual reality rendering was created in Blender to illustrate to the project manager and stakeholders the possible flow of visitors to the Wisdome.
Top View of VR Rendering Floorplan
Impact
While the construction of the Wisdome and foyer was not completed when we be brought onto the project, the museum project manager showed appreciation for our designed solution and used it to control the flow of visitors. During opening day, we helped transform the empty foyer into a magical pre-show experience, for over 300+ visitors. Here are a few more numbers for this launch:
300 +
visitors on opening day that successfully moved through the foyer
95%
on-time show starts all throughout opening day
4.7/5
average rating reported by visitors on the whole Wisdome experience
Reflection
Working on the Malmo Museum Wisdome project was very meaningful to me as I got the opportunity to contribute directly to my community. Receiving positive feedback from the project manager and museum curators was incredibly rewarding, but watching kids engage with the interactive displays and have a joy for learning, made it all worthwhile.
While this project continues to evolve, it highlighted how interconnected design systems for the visitor experience are. Questions emerged around use cases. What happens when visitors forget to return their 3D glasses? How do we handle visitors that want to skip the pre-show? Is priority seating needed to accommodate those into the theatre? These questions highlight the need for usability testing to catch edge cases and design solutions that account for different scenarios.
While working on the project I learned 2 main lessons:
Tailor the value of each design decision to different stakeholders- i.e. the project manager won't care about having carpets to help those with prosthetics, they care more if it will be within budget
Don't design for the universal design principles- Start out with addressing the problem and the pain point of the users. Then evaluate your design based on these principles to make adjustments
Next Steps
After delivering the final design, I identified some next steps and recommendations where I'd reallocate efforts after the grand opening.

Designated Standing Areas
Allow enough space in the pathways for visitors to watch the visual aids and read infographics to not disturb the flow.

Carpeted Floors
Lining the concrete floor with carpet will dampen the noise echoing and be more comfortable to walk on.

Ticket Control
Design an online ticketing system to buy and check-in tickets before entering the foyer to prevent congestion.






